-
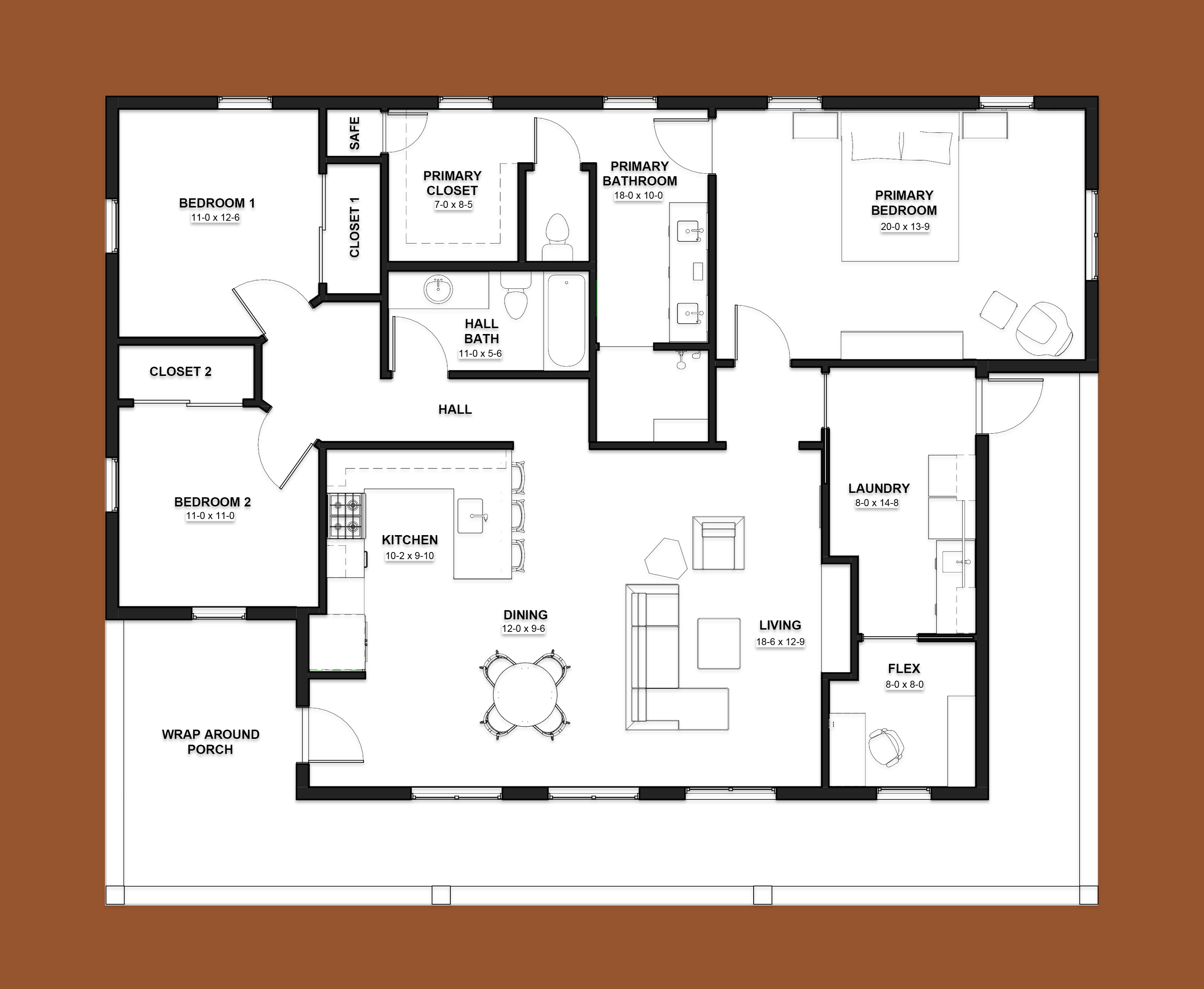
Heated SF: 1,724
Wrap Around Porch SF: 554
-
1 Story fully accessible layout
1 Primary Suite with large accessible bathroom, optional enclosed toilet room, & walk-in closet with discreet safe storage
Large open floor plan including U-shaped kitchen with peninsula seating, dining room and living room.
2 additional bedrooms with shared full hall bath (hall bath is not accessible).
Laundry / Mudroom with sink, hanging space, and storage.
Flex room for office, exercise, playroom, hobby space, storage or future care needs (optional window may be converted to door).
Wraparound porch totaling 554 SF for outdoor living and connection to landscape.
-
Width: 54’-2”
Depth: 44’-3”
-
Each plan set provides architectural and interior design intent prepared by a North Carolina Registered Interior Designer. Documents include:
Architectural dimensioned floor plan and roof plan
Interior elevations including custom cabinetry, fixture, and millwork design
Exterior elevations
Room layouts and circulation planning
Accessibility and aging-in-place design intent
Door and window sizing and location (nominal)
General notes for contractor coordination and budgeting
Specialized accessibility and universal design floor plan illustrating key aging-in-place and mobility principles to support long-term usability and informed coordination during construction
Fully editable AutoCAD (.dwg) file, ready for engineering, permitting, and collaboration with your builder or consultants
-
The following items are intentionally excluded and must be provided by licensed professionals in the local jurisdiction of construction:
Structural engineering and load calculations
Foundation design
Framing plans and details
Electrical, plumbing, or mechanical engineering
Site design, grading, drainage, or soil analysis
Code compliance review or permitting services
Visit FAQ on home plans landing page for further information
-
Primary suite designed with generous clearances and a flexible bathroom layout that can adapt over time
Thoughtful circulation and clear sightlines that support changing mobility without altering the home’s character
A versatile flex space that can shift from office or playroom to hobby space, storage, exercise area, or future care support
Universal design principles integrated subtly—so the home feels timeless now and adaptable later
-
This plan may be a great fit if you:
Are building a new home for a small family or future-focused couple
Want open living spaces with strong flow and connection
Appreciate aging-in-place features that are integrated quietly, not visibly
Need flexible spaces that can evolve as your lifestyle changes
Value long-term livability without sacrificing design or comfort
Why Alpine?
The Alpine goat is known for its versatility, resilience, and ability to thrive in a wide range of environments. Confident and adaptable by nature, Alpines are natural problem-solvers with a steady, curious presence — a fitting namesake for a home designed to support daily life, growth, and change with ease.
